㈜아이원이앤씨
IWANT E&C

BUSINESS INFO

설계분야

설계분야 (Ⅰ ~ Ⅶ )

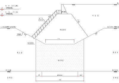
시추조사는 현장원위치 시험을 목적으로 토사와 퇴적층에 대한 시료 및 암반의 코어를 채취하여 지반의 분포 및 구성상태를 파악하며, 동시에 표준관입시험을 실시하여 지반의 특성을 파악한다. 또한 현장시험(현장밀도시험, 현장투수시험, 전기비저항 탐사 등)과 실내시험을 실시하고 분석하여 설계자료로 활용한다.

  • 시추조사 모식도

  • 현장투수시험

  • 전기비저항탐사

  • 표준관입시험

  • 불교란시료 채취

  • 현장밀도시험